Fei Atelier

INFO

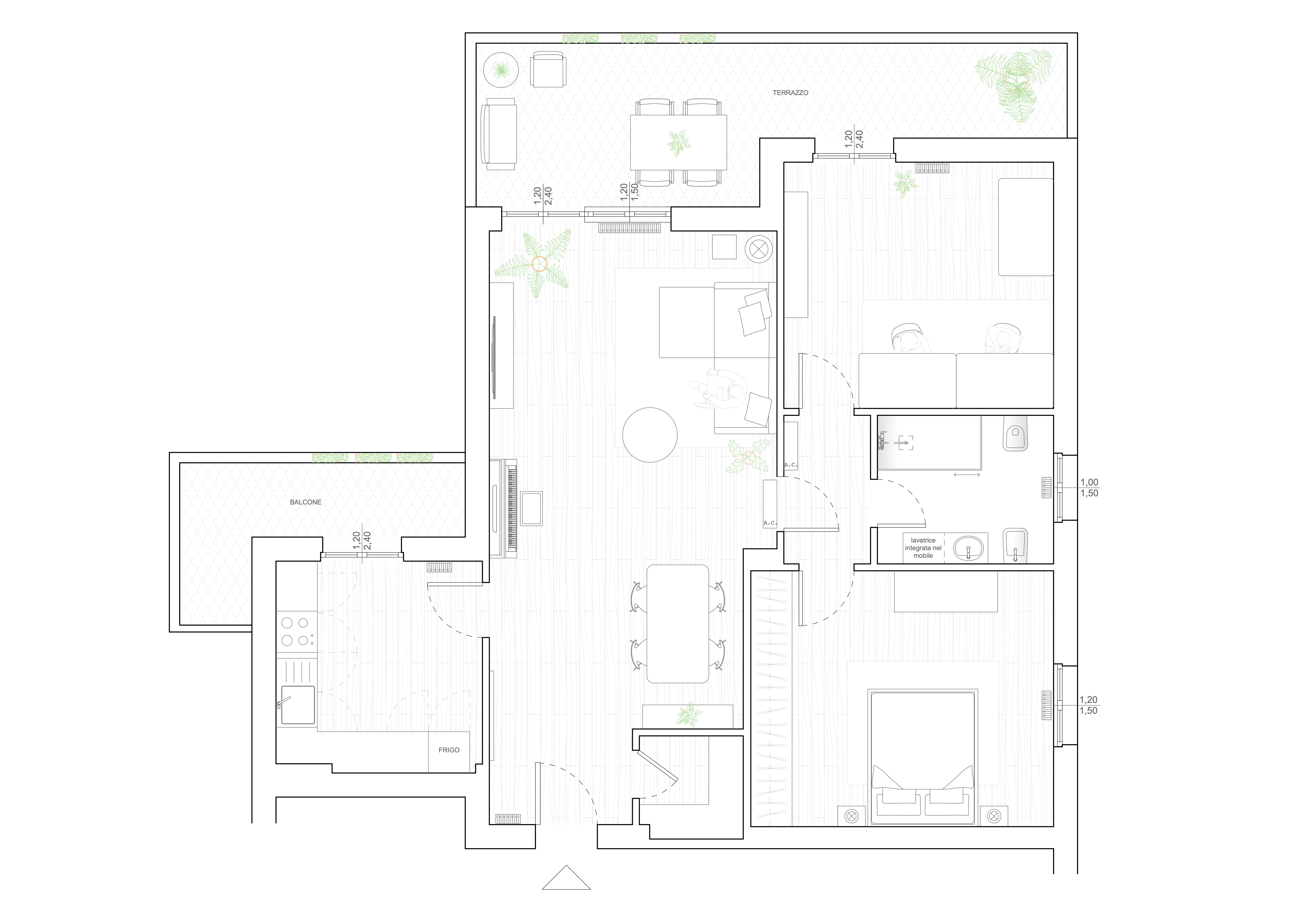
Casa G&I | Siziano, Italia | Interior Design, Interior Restyling | 2023


Un progetto di interior restyling che interpreta il mondo creativo di una giovane coppia di illustratori, rinnovando gli spazi senza interventi invasivi.


L’intervento è stato realizzato senza ricorrere a opere murarie. Per tutta la casa è stato scelto un nuovo pavimento in listelli SPC a incastro, posato direttamente sulle piastrelle esistenti. In bagno, invece, è stata applicata una pavimentazione adesiva in PVC, anch’essa sovrapposta al rivestimento originale.


Quando un appartamento risulta datato ma in buone condizioni, è possibile rinnovarne completamente l’immagine attraverso la scelta di materiali contemporanei e un nuovo progetto di arredo. Un intervento mirato che dimostra come, anche senza stravolgere gli spazi, si possa ottenere un risultato radicalmente diverso.

"La loro professionalità è stata evidente fin dal primo incontro. Sono stati disponibili ad ascoltare le nostre esigenze e a fornire consigli preziosi lungo tutto il percorso. Sono una coppia eccezionale, talentuosa e appassionata, e il risultato finale parla da sé."

Leggi qui la recensione completa