Fei Atelier

INFO

Villa A&A | Buccinasco, Italia | Ristrutturazione, Progettazione & Interior Design | 2025/26


(in attesa delle foto definitive)


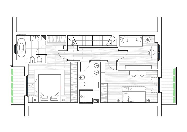
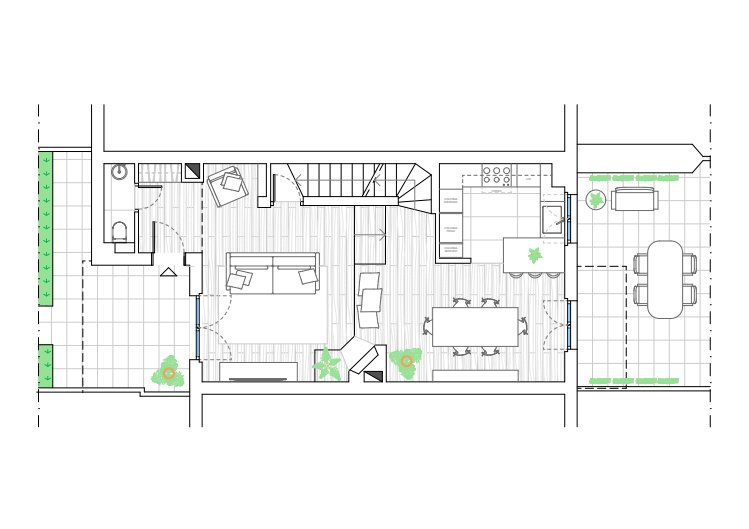
Una ristrutturazione parziale di una villa immersa nel verde di un contesto residenziale a Buccinasco, pensata per rinnovare gli spazi mantenendo un forte dialogo con l’esistente.


La cucina e i tre bagni sono stati completamente ripensati nella loro distribuzione interna, per ottenere spazi più funzionali, contemporanei e rispondenti alle esigenze quotidiane dei clienti. Anche la camera matrimoniale è stata riorganizzata, ricavando un bagno dedicato e ampliando la zona armadi.


Partendo dal carattere deciso del parquet originale, riportato a nuova vita attraverso la levigatura, le finiture di cucina e bagni sono state scelte in una chiave più delicata e leggera, creando l'equilibrio tra nuovo ed esistente.

Gli arredi combinano sfumature di legno, pietra e tessuti nei toni neutri e del verde, in continuità con il contesto naturale che circonda la villa.



"Siamo molto soddisfatti del lavoro svolto da Fabio e Iva per la ristrutturazione della nostra casa. Fin dal primo incontro abbiamo apprezzato la loro capacità di ascoltare le nostre esigenze e tradurle in soluzioni creative ed eleganti.

Il risultato finale ha superato le aspettative. Consiglio vivamente questo studio a chiunque voglia affidarsi a professionisti appassionati e competenti!"

Leggi qui la recensione completa