Fei Atelier

INFO

Villa S&D | Siziano, Italia | Nuova costruzione, Progettazione & Interior Design | 2024/25


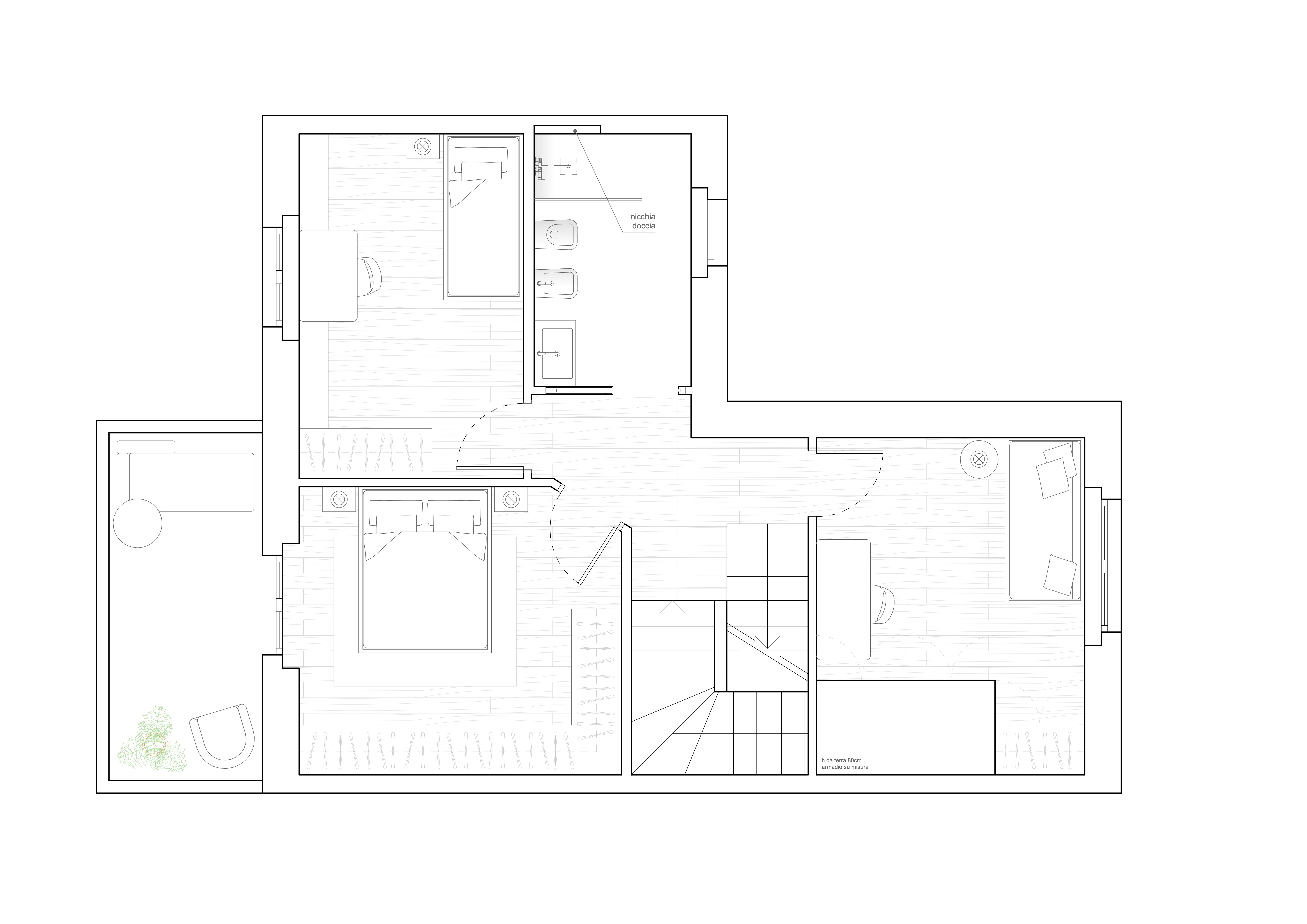
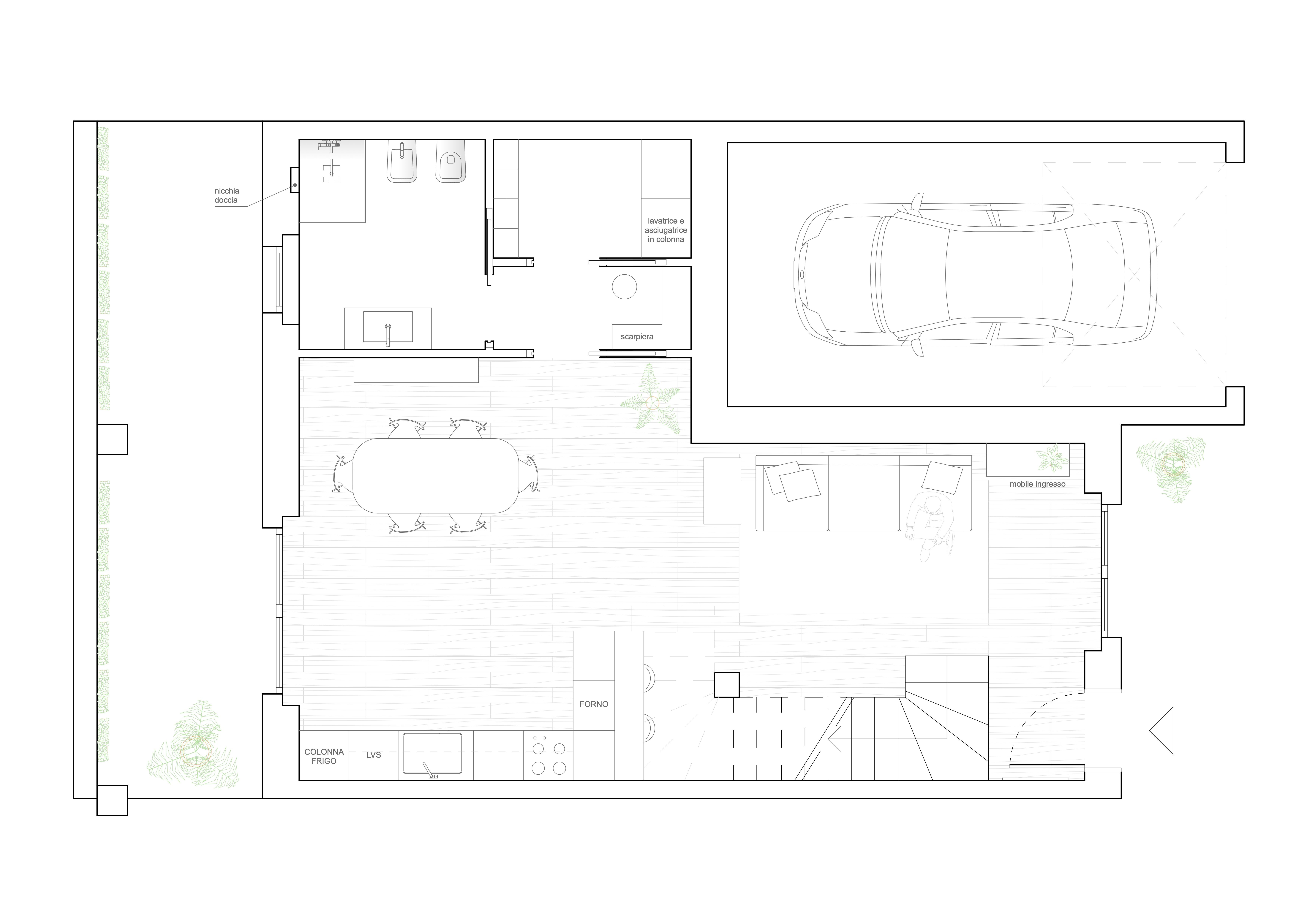
Abbiamo accompagnato i nostri clienti nella costruzione della loro Villa, occupandoci dell’intero progetto di interior design: dal layout alla scelta delle finiture e degli arredi, fino alla definizione dei mobili su misura.


La zona giorno è stata studiata per integrare elementi architettonici come la scala e il pilastro, trasformandoli in un punto focale della casa: una ringhiera in listelli di legno realizzata su misura, che unisce i diversi piani, e un mobile tv su misura inserito sotto la scala e integrato con il pilastro.


Gli spazi, progettati per accogliere la luce naturale, sono caratterizzati da materiali naturali e toni caldi, creando un equilibrio che si ritrova in tutta la casa.

Un progetto che racchiude tutto: serenità, calore e armonia.

"Ci siamo sempre confrontati su ogni scelta fatta, cercando la soluzione migliore anche a costo di dover valutare tante diverse alternative, con l'obiettivo di trovare sempre la soluzione che si adattasse perfettamente alle nostre esigenze."

Leggi qui la recensione completa