Fei Atelier

INFO

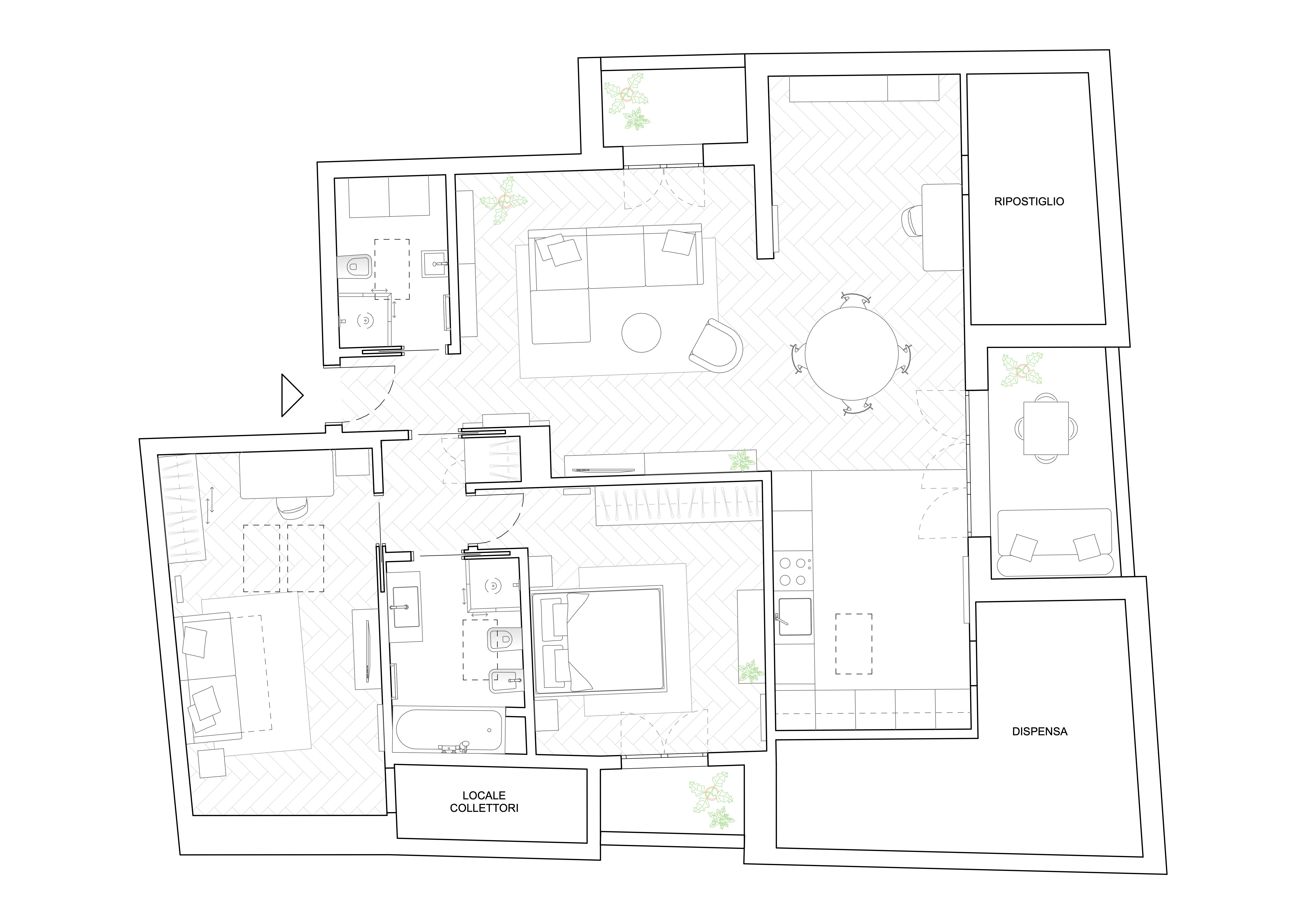
Casa E&A | Voghera, Italia | Interior Design | 2023


Un attico mansardato nel cuore del centro storico di Voghera, progettato per una coppia che desiderava uno spazio luminoso, funzionale ed accogliente.


Protagonisti della casa sono il parquet in rovere naturale a spina di pesce e le travi a vista sbiancate, che insieme contribuiscono a definire un ambiente caldo e raffinato.

La richiesta dei clienti era quella di integrare alcuni arredi esistenti con nuovi elementi, ricercando un equilibrio armonioso sia tra gli arredi stessi che con le finiture della casa.


La luce naturale gioca un ruolo centrale nel progetto: le grandi porte-finestre affacciate sul panorama del centro storico e sul Duomo di Voghera permettono alla luce di entrare generosamente, amplificando la percezione dello spazio e creando un’atmosfera luminosa e confortevole.



"Sin dall'inizio hanno capito le nostre necessità di arredo di una casa nuova, con mobili sia esistenti che nuovi, e un budget molto specifico. Hanno fatto un lavoro eccezionale, più di quanto avevamo chiesto. Li consigliamo ad occhi chiusi perché, oltre ad aver fatto un lavoro ottimo, sono appassionati di quello che fanno."

Leggi qui la recensione completa