Fei Atelier

INFO

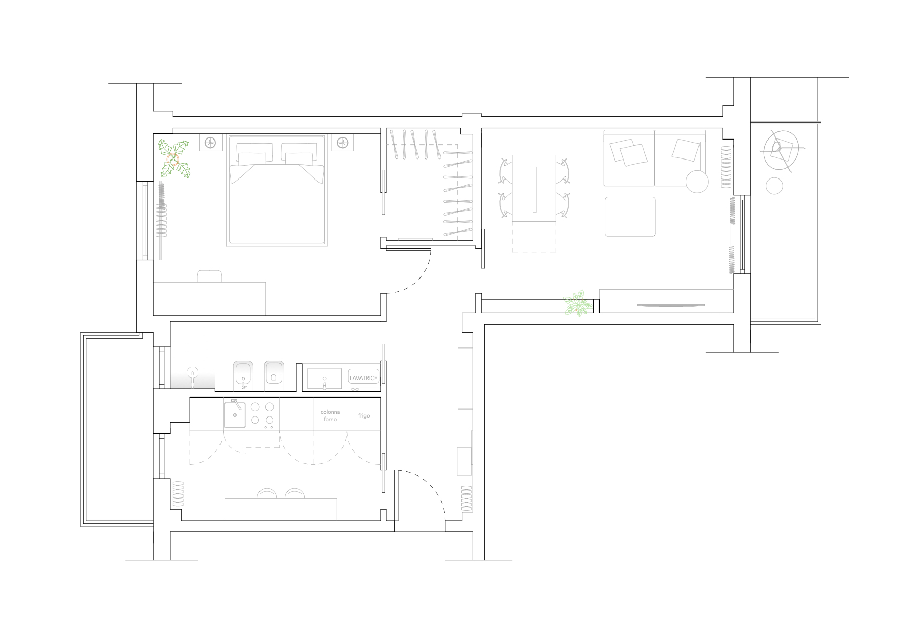
Casa LV | San Donato Milanese, Italia | Progettazione & Interior Design | 2022 | Collaborazione con Studio tecnico Duchely


Un progetto in stile japandi, con toni neutri e caldi, dettagli neri e mobili in legno.

Il concetto di quest'appartamento è basato sulla passione per i viaggi della cliente. Per questo nella zona soggiorno è stata ricavata una libreria in cartongesso dove possono essere esposti gli oggetti dei vari viaggi. Per quanto riguarda la camera da letto invece il dettaglio che salta all'occhio è la carta da parati raffigurante la cartina geografica della terra, dove possono essere segnati i posti visitati.

"La cosa che mi ha particolarmente colpita è stata la sua capacità di comprendere le mie esigenze e, soprattutto, soddisfare i miei gusti personali.

È riuscita a realizzare a pieno il progetto che avevo in mente, regalandomi un design che si adattasse perfettamente alla mia persona."

Leggi qui la recensione completa