Fei Atelier

INFO

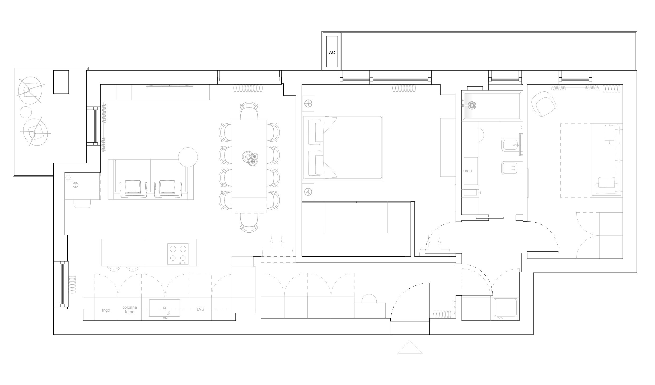
Casa G&G | Varese, Italia | Progettazione & Interior Design | 2021 | Collaborazione con Studio tecnico Duchely


Ristrutturazione di trilocale per una giovane coppia. Demolendo i vecchi muri abbiamo creato un open space composto da soggiorno, sala da pranzo, cucina e un piccolo angolo home office. Un progetto curato nei minimi dettagli per soddisfare tutte le richieste e le necessità dei clienti, accompagnato da un design minimal e delicato con toni neutri, tocchi di colore e legno rovere.